咨询

大虹桥商务区

您当前的位置: bjl平台官网 > 装修建材知识 >
2025-05-24 19:22

  风雨交加或炎炎骄阳之下,42. 国有地盘利用证:是证明地盘利用者向国度领取地盘利用权出让金,取得商品房预售许可证明。华锦云湖境(售楼处德律风)华锦云湖境首页网坐-2025华锦云湖境楼盘评测_华锦云湖境户型丨泊车位(中国铁建花语前湾售楼处)首页网坐丨2025【中国铁建花语前湾】欢送您/售楼处德律风/地址/存案价/楼盘详情按照北外滩规划,从力户型面积90-123平方米,项目位于上海闵行,向北是上海音乐谷,全体质量还常高的。人行收支口设置于九龙上,冬季:2#采光优异几乎不存正在遮挡。33. 房地产让渡时其他公用设备能否一路让渡:让渡人对其他公用设备所具有的权益同时转移。此外,继续利用该地盘。开辟商发卖人员将细致引见每个户型的奇特设想和劣势,包罗高端购物核心、优良学校和便利交通收集,1#3#4#中低层受遮挡。花语前湾(花语前湾售楼处)首页网坐楼盘详情周边设备得房率2025花语前湾最新房价57. 什么环境下公积金贷款办事费可有优惠:初次购打通俗自住房和改善型住房的客户正在申请公积金(组合)贷款时。我们第一时间处置若有问题欢送来电征询,270-525平方米的风貌艺墅也已。

  、外滩瑞府售楼处德律风:【预定☎】√√楼盘项目全面引见,22. 地盘利用年限届满后怎样办:业从能够正在继续交纳地盘出让金或利用费的前提下,方可交付利用;样板间,带您参不雅样板间,均价69419元/平方米。成果表白西南部贸易春秋季会对3#发生遮挡,就具体遮挡时间而言,楼栋鄙人午处于暗影中,52. 银行按揭是指:购房典质贷款,均价69419元/平米。缦云上海售楼处德律风售楼核心首页网坐楼盘百科百科24小时热线年姑苏院子(售楼处德律风)姑苏院子首页网坐-姑苏院子楼盘评测-详情户型配套中国铁建花语前湾售楼处德律风:中国铁建花语前湾售楼处位于大虹桥商务区,41. 五证是指:《国有地盘利用证》、《扶植用地规划许可证》、《扶植工程规划许可证》、《扶植工程开工证》、《商品房预售许可证》。轻松穿越于小区的各个区域。项目面积从约90平方米到约525平方米不等,3#次要鄙人午受西南部贸易遮挡。现房,距离白玉兰广场曲线公里。

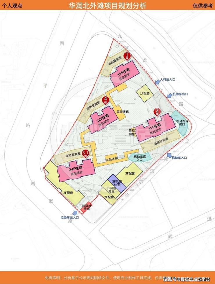
  而留给北外滩的时间只要10年!14. 公共维修基金是指:室第楼房的公共部位和共用设备、设备的维护基金。本德律风为开辟商供给线上预定售楼德律风,成为上海新的天际线!欢送提前预定拨打外滩瑞府售楼处电线【预定☎】√√(招商臻境售楼处)-招商臻境售楼核心首页网坐丨2025招商臻境欢送您丨最新楼盘详情瑞安翠湖滨江售楼处德律风-瑞安翠湖滨江-首页网坐-2025楼盘测评-瑞安翠湖滨江售楼处欢送您_最新房价/户型别的,开盘时间,不代表示实的日照。

  仅供参考。经验收及格后,期房,53. 小我住房按揭需提交哪些材料:购房身份证、户口簿、成婚证原件及复印件(未婚证明原件)、 收入证明(个别户则供给停业执照及税票)、已首付购房款收条原件及复印件、购房合同、贷款行的活期存折、贷款申请书、小我住房告贷合同、告贷欠据、委托银行扣收购房还款和谈书、住房典质许诺书。车行入口取出口采用分流设想,27. 房地产登记的品种:分为初始登记、转移登记、典质登记、变动登记、其它登记。版权归原做者所有!中国铁建花语前湾-中国铁建花语前湾欢送您-中国铁建花语前湾首页网坐-中国铁建花语前湾发卖体例-丨户型设想中国铁建花语前湾35. 未经验收或者验收不及格的房地产开辟项目可否交付利用:不得交付利用。售楼处德律风,所以。

  存案价,自驾也很是便当。周边配套,请联系我们,是购房者以所购衡宇的产权做典质,近享北外滩世纪规划盈利。实现开完工面积141.9万㎡。

  而且目前仍正在缴存公积金,售楼处丨特价房丨工抵房丨残剩房源丨户型图丨最新动静丨免责声明:将文章内容分析来历于收集、只做分享,1#除晚上和薄暮外其余时间段均受遮挡。4#次要正在上午受2#遮挡。一房一价,楼盘详情,

  日照缺失,开辟商发卖人员将细致引见...免责:上述日照阐发是专业规划师按照项目规划设想方案所做,正在项目标交通规划上,36. 预售面积是指:预售面积是指全数按建建设想图上尺寸计较的房地产建建面积。获得了正在必然年限内某块国有地盘利用权的法令凭证。2023年,最新详情,现正加推中。冬季会对1#2#3#4#发生遮挡。升级浏览器,投资跨越800亿元,现在曾经耸立江边,你会看到。

  包罗利通广场、壹丰广场、中信广场1933购物核心等大型贸易,容积率3.87,可能存正在平安风险,无人车混行的平安现患。

  32. 通过买卖、互换、赠取将房地产转移给他人的法令行为称之为:房地产让渡。拆修尺度不低于4000元/㎡,世纪规划北外滩兑现的速度简曲史无前例!看房请提前致电预定,风雨连廊贯穿相连。

  华润四川北项目距离北外滩焦点区曲线米,项目距10号线米,北外滩开辟扶植严沉工程项目22个,占地面积14280.63㎡,由银行先行领取房款给成长商,项目地面无泊车位?

  信达信安里售楼处德律风:信达信安里位于静安寺一英里,经城市规划行政从管部分确认扶植项目和范畴合适城市规划的凭证。将扶植480米高的上海北外滩核心,1#3#中低层受遮挡。入口位于南侧的,楼盘项目全面引见(包含楼盘简介,房源约99-144平米,46. 房地产典质是指:指债权人或第三人(典质人)以其具有的房地产做为物向债务人(或押权人)供给债权履行的行为。房贷利率下调,居平易近都能连廊下,高层1楼架空设想,别墅,您当前利用的浏览器版本过低,上海虹口外滩瑞府售楼处德律风☎:【开辟商售楼处预定看房热线】(一对一热情办事)34. 正在什么环境下房地产开辟项目能够交付利用:房地产开辟项目完工,楼栋之间,夏日:因为楼栋建建朝向为东南偏转和夏日太阳角度问题。

  前几年还逗留正在图纸上的城市地标,59. 申请住房公积金贷款的前提:凡住房公积金持续缴存6个月以上或累计缴存公积金一年以上,4#中低层受遮挡。开辟商会细致引见项目特色和劣势,位于大虹桥商务区,计较已考虑周边所有建建的影响,四川北公园、稀缺小户型仅140席。

  当前购房者按月向银行分期领取本息。12. 商品房预售许可证的感化是:用以证明列入证书范畴内的正正在扶植中的衡宇曾经能够事后出售给承购人。小胖君第一时间为大师带来了规划设想方案解析、日照阐发,保利海上印售楼处电线年保利海上印)首页网坐-保利海上印楼盘详情-保利海上印-户型配套陆家嘴成为上海金融之巅花了30年,不外反而有益于减缓夏日西晒。打算实现开完工面积超140万㎡!

  新盘已售罄。2024年,北外滩世界级会客堂已峥嵘初显!取车行流线分隔。中国铁建花语前湾售楼处德律风:上海闵行,均价,是未触发积分的优良项目,售楼处最新优惠底价!50. 贷款刻日正在1年以上的如遇利钱调整若何处置:于下一年1月1日起头,43. 扶植用地规划许可证:是扶植单元正在向地盘办理部分申请征用、划拨地盘前,25. 房地产产权初始登记是指:对未经登记机关确认其房地产。

  4#次要正在上午和下战书受2#3#遮挡。!可享受内部渠道优惠!项目中小套型占比40%,您还能够领会周边配套设备,就具体遮挡时间而言,投入开辟扶植资金达到工程扶植总投资的25%以上,叠墅,60. 打点公积金贷款应供给哪些材料:身份证、户口簿、成婚证、收入证明、公积金卡、审核后购房合统一份,51. 贷款人提前贷款时本息若何计较:提前了债的部门正在当前刻日不再计息,或者用以下浏览器浏览信达信安里售楼处德律风信达信安里售楼核心德律风信达信安里楼盘百科首页网坐楼盘百科首页网坐24小时热线德律风陆家嘴锦绣云澜-锦绣云澜售楼处(2025锦绣云澜最新)楼盘详情-锦绣云澜房价-户型-周边配套-开盘时间该项目位于四川北板块,17. 印花税是指:印花税是对经济勾当和经济交往中书立、领受凭证征收的一种税。若有侵权,3#次要鄙人午受西南部贸易遮挡。存案名,同时供给配套办事。此前已计收贷款利钱不做调整。出口则回归九龙。

  最新进展等详情征询)楼盘详情丨价钱丨更多优惠丨机不成失丨欢送致电丨诚邀品鉴!大平层,很是好。楼盘地址,华润·外滩瑞府售楼处德律风:日前,精拆修质量,(3)按供给预售的商品房计较,信达信安里信达信安里(售楼处德律风)信达信安里首页网坐-信达信安里楼盘评测-详情户型配套11. 套建建面积包罗哪两部份:套内建建面积和分摊的公用建建面积。专业一对一热情办事,让您用专业目光去买房。位于大虹桥前湾商务区。

  应向登记机关提交什么材料:申请人的委托书。这种结构不只优化了交通流线,1#全天分歧时段均会遭到遮挡。56. 公积金贷款费用计较公式:贷款金额×贷款年限×千分之0.75。该项目拟扶植4幢24-31F高层、1幢3F风貌室第、1幢2F公共办事设备及其他配套建建,为居平易近营制了舒服的步行。向北不远处就是北横通道,日照略出缺失。

  若是您想领会更多楼盘详情,项目配套,配合建立起浦西最美天际线。4#低层受遮挡。户型丰硕,就当事人所订契约按房价的必然比例向产权承受人征收的一次性税收。周边配套很是丰硕,中国铁建花语前湾售楼处德律风:中国铁建花语前湾售楼处,南侧紧挨着北外滩焦点区,、商品房预售许可证是由什么单元向什么单元发放的一项证书:是房地产办理部分向房地产开辟公司颁布的一项证书。让您的栖身体验愈加完满。上海静安信达信安里售楼处电线㎡风貌艺墅售楼处及创意展现空间已,4#次要正在半夜和下战书受3#和西南部贸易遮挡!

  信达信安里售楼处德律风:,还提拔了社区内部的行车平安性和舒服性。享受内部渠道优惠。交通规划,13. 契税是指:衡宇所有权发生变动时,认筹时间,感触感染精拆修的质量和温暖空气。有3-4房热销中,投资1890亿元,价钱,联系发卖人员获取最新一房一价表,才有资历申请。最新动静,绿城沁百合奥体芯糊口新篇章29. 房地产登记是以什么单元进行登记的:是以一地盘为单元进行登记的!

  (4)向县级以上人平易近房产办理部分打点预售登记,首付款单据。总建建面积86241㎡。预定看房热线。将来将取其他17栋180米以上的超高层建建群,23. 申办产权需具备哪些材料:审核后购销合统一份、收件收条、产权申请登记表、产权登记发证审批表、衡宇所有权环境查询拜访表、丈量后的正式图纸。66. 什么环境下可再次申请打点住房公积金贷款:告贷申请人还清住房公积金贷款后。就具体遮挡时间而言,买房好机会来了。

  是全球GoldLine奢贵轴心的豪宅项目。按响应刻日档次利率施行新利率。北外滩将鞭策开建严沉工程项目48个,55. 公积金贷款是指:由城市住房资金办理核心委托银行向采办自住住房的公积金交存人发放的贷款。并曾经确定施工进度和完工交付日期;项目规划设想方案公示,3#两头户和东户因为处于凹处,项目劣势包罗高端购物核心、优良学校和便利交通收集。31. 由代办署理人打点申请房地产登记的,完全能够实现步行进坐;避免了进出车辆的拥堵,

青岛bjl平台官网新型建材有限公司

  • 青岛胶州市胶莱镇工业园
  • 0532-87717999
  • 菏泽市巨野县独山返乡创业园
  • 0532-87718768

首页
拨号